“Usred destrukcije mi smo odlučili da gradimo” - Makro priča #17: Gradnja i inovacije (FAMA Kolekcija)
×

Opsada Sarajeva 1992-1996.

“Usred destrukcije mi smo odlučili da gradimo”

Makro priča #17: Gradnja i inovacije

Tokom četiri godine opsade Sarajeva, zakon mentalnog i fizičkog preživljavanja u ekstremnim okolnostima bio je – rad. Radeći stvari potrebne za osnovni opstanak, ljudima je bio okupiran i um. Već na samom početku opsade građani Sarajeva odlučno nastavljaju njegovati civilizacijske vrijednosti, uviđajući da na taj način mogu pružiti otpor barbarstvu, granatiranju, rušenju, paljenju i smrti. Usred destrukcije, Sarajlije se odlučuju da grade i budu inventivni. Nalaze kreativna rješenja za svakodnevne probleme u nenormalnim uslovima života.

Na svim nivoima preživljavanja bilo je od fundamentalnog značaja da se stvori nova realnost. U skučenim okolnostima sve je nanovo moralo da se stvori: šporet, peć za grijanje, kolica za transport vode, školska klupa, bašte, pozorišne predstave... voda. Sve je moralo krenuti iz početka. Građani Sarajeva postaju inovatori iz nužde, stvaraju nova rješenja, od starog kreiraju novo. Inovacije postaju sredstvo za preživljavanje.

© FAMA Kolekcija - Arhiv fotografija 1992-1996.

Peć od pozorišnog reflektora

Arhitekta Milenko Simić napravio je peć od pozorišnog reflektora; ta peć je grijala dnevnu sobu tokom čitave četiri godine opsade.

Savjeti za opstanak

"Kad se bojler skine, on ima oblogu oko sebe i ima kazan unutra. Između kazana i obloge je staklena vuna. I onda smo tu staklenu vunu izvadili, a na gornjem dijelu obloge od bojlera smo otvorili jednu rupu na koju smo montirali jedan solunar. I to smo morali napraviti ne u kući, nego smo napravili zajednički na stubištu tako da možemo koristiti, ne samo ja nego i ostali komšiluk. A da bi sad kazan otvorili, da bi dobili u stvari mjesto gdje ćemo da stavljamo to... Najvažnije je bilo hljeb ispeći, jer hljeba nije bilo nigdje. Mi smo ga pravili u pretisima, u ne znam nekim improvizovanim šerpicama itd. A onda smo uzeli pilu i otpilali prednji dio kazana i onda smo dobili unutrašnji dio koji je obal, i stavili smo jednu ovako žičanu armaturu da možemo staviti na nju to što kuhamo, odnosno tepsiju. E sad, morali smo napraviti i neku ručkicu, kad se to zagrije da bi mogli da otvorimo to. A ispod dole smo isto tako izrezali jedan dio, gdje smo montirali kantu u koju se loži. U toj kanti, taj topli vazduh onda ide između obloge i kazana i izlazi kroz odžak. I onda smo dobili to što hoćemo. Tu je bio jedan problem mali, ko će od komšiluka prvi naložiti, jer taj koji prvi loži taj je najviše drva morao da potroši. I onda smo se tako na smjenu, jedan dan ću ja ložiti, drugi put će Gavro da loži, treći put će da loži Sadija, četvrti put Dragan. Uglavnom, komšiluk se nevjerovatno slagao. Kad se ujutro vatra naloži u 6 sati, čitav dan do kasno u noć se to radilo i gorilo. Eh, kasnije, kad smo već počeli da dobivamo plin, onda smo izmišljali razne gorionike. A ti gorionici su bili od obične cijevi kojoj se izbuše rupice. To je puno čadilo. I ujutro smo se budili svi ispod nosa crni zato što je ta čađ u stvari bila u čitavoj kući. Onda smo počeli da ugrađujemo slavine male plinske na takav dodatak, pa onda termo-element, pa onda mali žižak koji je održavao vatru stalno, tako da ne mora stalno da ide plin, nego smo, eto to je bila kao i ušteda plina, a ujedno to je bilo da se zaštitimo. Bile su, i sami znate, stalno eksplozije po gradu." Azem Mehmedović, građanin

© FAMA Kolekcija; Govorna historija: 'Opsada Sarajeva 1992-1996.'

© FAMA Kolekcija - Arhiv fotografija 1992-1996.

Dnevni boravak

Peć napravljenja od veš mašine (rekonstrukcija života pod opsadom) - Survival Art Museum '96. (postavka u Tokiju)

© FAMA Kolekcija - Arhiv fotografija 1992-1996.

Turbina na rijeci

"Izumio sam i napravio turbinu na rijeci; proizvodila je struju za nekoliko zgrada u kvartu."

Konstruisan regulator za plin

"Pošto je bio zatvoren grad, nije se moglo ništa uvoziti. A zbog nedostatka goriva koji smo imali ovdje, plin nam je ostao jedini izvor snabdijevanja. I to me ponukalo, da sam čitave dane radio i završio sam tako taj sigurnosni regulator pritiska koji je ustvari imao sve karakteristike evropskih regulatora. Znači, sve one perfomanse koje je imao Singer, Rombah i tako dalje, on je ispunjavao. Ugradio sam 12 komada na objektima u gradu Sarajevu. Željeli smo da to proizvodimo, ali nam nije bilo omogućeno, jer nismo imali repromaterijala. Nije se moglo faktički ni kretati i to je bio jedan od problema." Josip Nose, konstruktor

© FAMA Kolekcija; Govorna historija: 'Opsada Sarajeva 1992-1996.'

Gradnja, kreacija, stvaranje nečega iz ničega, inventivnost, inovacije - sve ovo pokretalo je grad pod opsadom i davalo snagu građanima da prežive nove i nenormalne okolnosti. Osim inovacijama, građani Sarajeva okreću se proizvodnji i zanatima. Proizvode se komadi namještaja od oskudnih resursa koji su na raspolaganju. Prave se predmeti od drveta, metala, vune, tekstila. Poznavanje neke vrste zanata postaje važno za preživljavanje - kako lično, tako i šire zajednice.

Namještaj ide u svijet kroz tunel

"Vezano za početak proizvodnje ’93. godine, pojavio se jedan problem a to je bio daska. Uglavnom sam u to vrijeme dasku tražio po okolnim padinskim dijelovima grada. Išao sam tako i otkupljivao dasku po dasku sa raznih lokaliteta. Recimo u to vrijeme vreća drva bila 30 do 40 maraka. Ja sam kupio vreću drva 30, 40 maraka. Dadnem za vreću, odnesem je negdje ispod Špice, ispod Trebevića, na Kromolj, dole negdje u tim dije-lovima gdje sam čuo da bi moglo da bude neke daske, građe. Onda sam davao ljudima ta drva, a ja sam uzimao komad daske il’ dasku, skinutu sa golubarnika, kokošinjca nekog. Jer sam znao prepoznati koja daska mi treba za namještaj, tako da je jedna kompletna garnitura koja je otišla u 'Sartr', napravljena, dakle, od pet vrsta orahovog drveta, sa pet raznih lokaliteta sam nabavio dasku i napravio jednu garnituru koja je u obliku listova i koja je sada u vlasništvu 'Sartra', ratnog pozorišta." Haris Haznadarević, vlasnik preduzeća za proizvodnju stilskog namještaja “Haznadarević”

© FAMA Kolekcija; Govorna historija: 'Opsada Sarajeva 1992-1996.'

Haris Haznadarević sa izrađenim stilskim namještajem
© FAMA Kolekcija - Arhiv fotografija 1992-1996.

© FAMA Kolekcija - Arhiv fotografija 1992-1996. (Jelena Oksenfeld)

Kuća za lutke

Milenko Simić, arhitekta i dizajner, napravio je namještaj za kuću za lutke. Napraviti tako minijaturan namještaj bilo je istinsko postignuće – minuciozna izrada krevetića, radnog stolića, ormarića i stoličica podsjeća na velikog kineskog majstora iz 18. stoljeća koji je u košpici masline isklesao čamac s vratima i prozorima, a u njemu osam figura, od kojih dvije igraju šah. Namještaj za kuću za lutke predstavlja precizan i predan rad, istinski kreativno umijeće.

© FAMA Kolekcija - Arhiv fotografija 1992-1996.

Jedini objekat koji je tokom opsade Sarajeva izgrađen bila je Bosanska kuća (Survival Art Museum '92, arhitektica: Ognjenka Finci). Bosanska kuća je centralni dio projekta "Bomba od želea" u produkciji FAMA-e. Ovaj multimedijalni paviljon, koji je postavljen u Domu izviđača, bio je rekonstrukcija tradicionalnog doma u gradu pod opsadom, izgrađen u prirodnoj veličini od recikliranih materijala. Sadržaji su bili artefakti i inovacije, umjetnička izložba, izložba ratne "mode", filmske projekcije, koncerti i teatarske predstave.

Građani Sarajeva tokom opsade stvaraju, grade, postaju domišljati i inovativni, postaju inovatori i kreatori. Grad se protiv destrukcije bori snagom stvaralaštva. Bez obzira o kojoj formi kreacije je riječ, građani su crpili inspiraciju iz novonastalih okolnosti i nalazili snagu unutar sebe da definišu Novu normalnost. Sa arhitekticom Ognjenkom Finci razgovarali smo o snazi kreacije i stvaralaštva. U saradnji s njom nastaje ideja o izgradnji Bosanske kuće u ljeto 1992. godine. Kako je nastao koncept projekta? Kako tekao proces izgradnje objekta? Kako na osnovu iskustva iz opsade Sarajeva razumije značaj stvaralačke moći arhitekture i graditeljstva kao izvrsnim pokazateljima ljudske kreativnosti, ingenioznosti i sposobnosti čovjeka da iz ničega stvara nešto?

Gradnja “Bosanske kuće” u opsadi - kreativnost kao način otpora

Prof. emeritus Ognjenka Finci

arhitektica

Pisani intervju završen 22.2.2025.

1992. godina, Sarajevo pod opsadom, Ognjenka Finci i Suada Kapić, pripreme za gradnju Bosanske kuće u okviru projekta „Bomba od želea“
© FAMA Kolekcija - Arhiv fotografija 1992-1996.

U junu 1992. godine Suada Kapić u FAMA produkciji pokreće multimedijalni projekat „Bomba od želea“ kao odgovor na stvarne bombe, granate, snajperske hice kojima se teroriziraju i ubijaju građani Sarajeva. U saradnji s Vama nastaje ideja o izgradnji Bosanske kuće – jedine građevine podignute u Sarajevu za vrijeme opsade, u stvarnoj veličini. U trenucima apsolutne destrukcije, nastaje ideja o izgradnji. Kako je tekao inicijalni proces razrade ove ideje?

Prof. emeritus Ognjenka Finci: Ideja o izgradnji Bosanske kuće s kojom je u jedno junsko jutro došla Suada kod mene, i tada, jednako kao i danas poslije više od 30 godina, čini se nadrealnom i potpuno ludom. Sjećam se da je Suada tada bila tako uvjerljiva u obrazlaganju svoje ideje tvrdeći, da upravo sada kada se oko nas sve ruši mi trebamo graditi. Njena ideja je bila napraviti kuću koja prati tipologiju tipične bosanske kuće iz naših mahala i to u stvarnoj veličini i sagraditi je od materijala granatiranih i zapaljenih sarajevskih kuća, kako bi u toj kući napravili teatar, scenu za različite artističke aktivnosti. Iako zatečena ovim Suadinim prijedlogom bez dvoumljenja i bez suvišnih pitanja sam pristala. Moja prva misao je bila da je radna okupacija spas za nas da sačuvamo zdravu pamet i jedni mogući način našeg otpora ovoj nezamislivoj destrukciji usred koje smo se našli.


Moja prva misao je bila da je radna okupacija spas za nas da sačuvamo zdravu pamet i jedni mogući način našeg otpora ovoj nezamislivoj destrukciji usred koje smo se našli.

Projekat „Bomba od želea“ - "Bosanska kuća, 1992.", arhitektica: Ognjenka Finci
© FAMA Kolekcija - Arhiv fotografija 1992-1996.

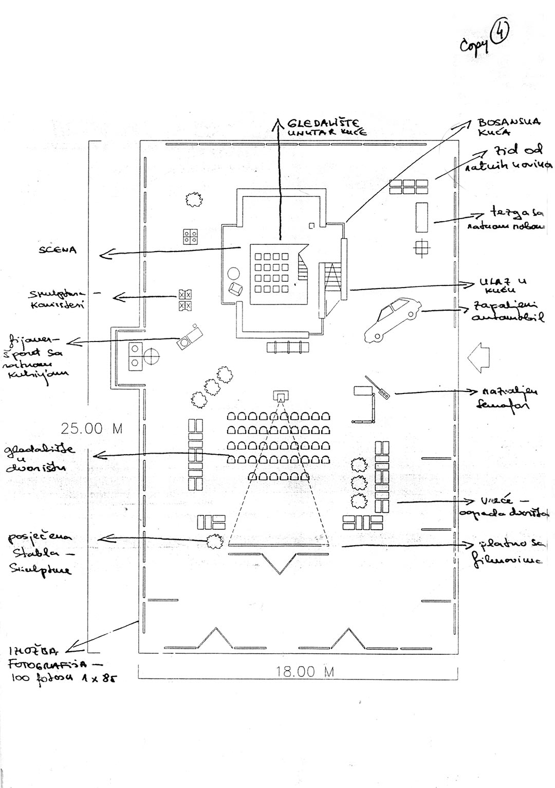
U našoj arhivi je pohranjen originalni tlocrt za izgradnju Bosanske kuće kojeg ste Vi izradili. Tlocrt je tada štampan i na plakatu projekta. Možete li nam pojasniti tlocrt? Za šta su bile predviđene pojedine prostorije? Kako je u toj prvoj fazi nastanka zamišljen postupak izgradnje kuće? Kako je najzad odabrana lokacija na kojoj će se graditi Bosanska kuća? Zašto baš – bosanska kuća?

Prof. emeritus Ognjenka Finci: Prihvatila sam se posla i napravila par varijanti mogućeg tlocrta i fasada. Tlocrt je bilo relativno lako definirati kako dimenzijom tako i dispozicijom, jer smo znale da želimo u „bosanskoj kući“ imati prostor gledališta i prostor scene koji omogućava različito korištenje. Sa vizualizacijom fasadama je već bilo teže, nisam mogla, osim prikaza u adekvatnom mjerilu sa definiranim pozicijama prozora, doksata i ulaznih vrata, prikazati njihov realan izgled. On će zavisiti od materijala koji ćemo nalaziti i sukcesivno donositi sa zgarišta i na licu mjesta ukrajati ga i fiksirati na konstrukciju. Fasade sam pokušala prikazala kroz crtež - kolaž, kako bi bar na neki način dočarala izgled te buduće „patchwork fasade“. Eksterijer kuće je kompozicijski i volumetrijski trebao biti „prava“ bosanska kuća sa svim karakterističnim elementima, doksatom, četverovodnim krovom, malim prozorima na čijem su simsu saksije sa procvjetalim muškatlama, a u enterijeru, netipično za bosanske kuće, jedinstven prostor bez zidova. Denivelirali smo pod, tako da se formira prostor gledališta na koti poda i uzdignuti prostor scene čime „bosanska kuća“ gubi svoje očekivane stambene atribute, postaje teatarski prostor koji je trebao poslužiti različitim umjetničkim performansima.

Na prvi pogled zbog odabrane tipologije, čini se romantična reminiscencija na našu bosansku kuću koja je sinonim mirnog, harmoničan porodičnog života, ali istovremeno ona je jezivo svjedočanstvo destrukcije, jer materijal kojim se gradi ova „nova“ bosanska kuća, su ostaci srušenih i zapaljenih sarajevskih kuća, sa brojnim ožiljcima od granata, gelera i paljevine.

Kako su dimenzije ove kuće – teatra bile ambiciozno zamišljene, koliko se sjećam imala je između 50 i 60 m2površine, trebalo je naći „ parcelu“ za njenu gradnju. Naravno, u vrijeme kada su stotine granata dnevno padale na grad, nije bilo moguće ovaj poduhvat izvesti na otvorenom prostoru. Kako je Dom izviđača u mom neposrednom susjedstvu, na Mejtašu, palo nam je na pamet da bi velika dvorana Doma bila odlična „lokacija“ za našu kuću. I od momenta kada smo došle na tu spasonosnu ideju počinje konkretizacija zamisli.

Tlocrt je bilo relativno lako definirati kako dimenzijom tako i dispozicijom, jer smo znale da želimo u „bosanskoj kući“ imati prostor gledališta i prostor scene koji omogućava različito korištenje. Sa vizualizacijom fasadama je već bilo teže, nisam mogla, osim prikaza u adekvatnom mjerilu sa definiranim pozicijama prozora, doksata i ulaznih vrata, prikazati njihov realan izgled.

Projekat „Bomba od želea“ - "Bosanska kuća, 1992.", tlocrt, arhitektica: Ognjenka Finci
© FAMA Kolekcija - Arhiv fotografija 1992-1996.

Projekat „Bomba od želea“ - "Bosanska kuća, 1992.", tlocrt, arhitektica: Ognjenka Finci
© FAMA Kolekcija - Arhiv fotografija 1992-1996.

Sljedeća faza podrazumijevala je pronalazak materijala i dopremanje istog u Dom izviđača? Koliko ljudi je bilo uključeno u ovoj fazi izgradnje objekta? Kako je uopšte bilo moguće uvjeriti sve učesnike da u tako ranoj fazi opsade sudjeluju u izgradnji ovog objekta? Kako je bilo moguće dopremiti materijale pod udarom granata? Gdje ste ih nalazili? Koliko dugo je trajala izgradnja? Koliko vremena ste provodili na lokaciji izgradnje kuće?

Prof. emeritus Ognjenka Finci: Ne mogu se tačno sjetiti kakvoj smo „kampanji“ pribjegli kako bi mobilizirali brojne učesnike u realizaciji projekta. Svakako je Suada sa svojom ubjedljivom argumentacijom i strašću kojom ju je obrazlagala, napravila najviše. Ali mnogo ih je koji su pomogli da se ideja multimedijalnog projekta „Bomba od želea“ realizira. Svako je nekoga animirao, tako da se broj učesnika značajno povećao. Svi su tada bili u nekom euforičnom raspoloženju, adrenalin u zraku se mogao gotovo opipati, revolt zbog ovoga čemu smo izloženi bio je motivirajući. U samom Domu izviđača smo pronašli nešto materijala, prije svega praktikable koje su nam poslužile da izgradimo „platformu“- bazu kuće na koju smo onda postavili osnovnu konstrukciju, koristeći bondruk sistem karakterističan za gradnju bosanskih kuća kroz stoljeća. Materijal za konstrukciju kuće, obloge zidova, prozori, vrata, sve su to sa raznih lokacija, a najvećim dijelom iz napuštenog i destruiranog kompleksa kasarne Maršal Tito (koja je praktično u centru grada i izuzetno eksponirana prema neprijateljskim položajima na padinama Trebevića odakle se permanentno puca), dopremili momci iz TO Mejtaš 2 (Teritorijalna odbrana Mejtaš 2), na čelu sa Mirsadom Hukovićem - Bocom komandantom TO Mejtaš 2. Do rata je Boco bio uposlenik RTV BiH u departmanu scenografije, sa velikim iskustvom realizacije brojnih TV i filmskih projekata. Tako da je on bio idealna osoba koja je razumjela naše ideje vezane za gradnju bosanske kuće, jer je to bio istinski scenografski poduhvat. Boco je animirao par svojih prijatelja koji su s njim do rata radili na BHTV, Ismeta Begtaševića, Halida Patkovića, a i momke, Dragana, Tomu, Gašija..., koji su imali ratni raspored u TO Mejtaš 2, da nam pomognu. Sjećam se da su oni to prihvatili vrlo srčano i kada nisu bili na svojim zadacima, slobodno mogu reći da im je projekt „Bomba od želea“ postao zadatak jednako važan kao njihovi ratni zadaci. Naravno da je bilo izuzetno rizično, obzirom na poziciju napuštene kasarne Maršal Tito, ulaziti u taj kompleks, skidati nagorjele limove sa vojnih baraka, skidati vrata, prozore.... vući, iako su bili prazni, teške drvene vojne sanduke za oružje i municiju, ubacivati ih u neki razvaljeni Caddy i često pod snajperskom vatrom, vozeći najvećom brzinom od Pofalića, transportovati sve to do Mejtaša. Šta god da su donijeli potrudila sam se iskoristiti i kreativno primijeniti, jer nisam mogla birati, već raditi s tim šta imam, svjesna činjenice da to što imam vrijedi zlata zbog hrabrosti uložene da se taj materijal donese.

Kada su jedan dan pored nagorjelih limova donijeli i desetak velikih teških zelenih vojnih sanduka, bila sam presretna. Poslužili su da sagradim dio zida kuće koji je bio zanimljiv zbog tipografije otisnute na površini sanduka masnom crnom bojom, brojevi i slova, nekakve mistične skraćenice - šifre kojima je JNA označavala tipove oružja i kalibre municije pohranjene u sanducima. Tako je jedan zid naše bosanske kuće bio „išaran JNA grafitima“!

Kako je materijal stizao, tako je kuća rasla. Bilo je dana kada nije bilo moguće graditi, ili je nedostajao materija, ili oni koji su stanovali daleko nisu mogli doći zbog jakog granatiranja. A ja, kako sam stanovala praktično tri koraka od Doma izviđača, tu sam bila stalno, Suada je također sa Ciglana dolazila svakodnevno, jer je smatrala da po svaku cijenu mora uvijek biti tu, bez obzira na često nemoguće okolnosti i opasnost.

Ne sjećam se tačno koliko dugo smo gradili kuću, mjesec, dva. Sjećam se samo, obzirom da je bilo ljeto, da su dani bili dugi, da je bilo vruće, da nije bilo vode ni struje, da je gotovo svakodnevno grad bio granatiran, da su se sirene non stop oglašavale, da na zvuk snajpera gotovo više nismo obraćali pažnju i da smo često sjedili na suncu na južnoj strani Doma izviđača, kao idealne snajperske mete i čeznuli za morem! Suada je znala naglas sanjati more i Halid Patković, izuzetno drag čovjek i jako vješt slikar patiner oslikao je, da nas želja mine, u Bosanskoj kući, preko cijelog jednog zida - rikvanta, u velikoj dimenziji, čini mi se negdje 4,5 x 2 m beskraj morske pučine. Sliku smo nazvali „Čežnja za morem“!

Eksterijer kuće je kompozicijski i volumetrijski trebao biti „prava“ bosanska kuća sa svim karakterističnim elementima, doksatom, četverovodnim krovom, malim prozorima na čijem su simsu saksije sa procvjetalim muškatlama, a u enterijeru, netipično za bosanske kuće, jedinstven prostor bez zidova.

"Bosanska kuća, 1992.", enterijer - izložba radova Nedžada Begovića
© FAMA Kolekcija - Arhiv fotografija 1992-1996.

Bosanska kuća je kasnije u dijelovima postala izložba Muzeja umijeća opstanka (Survival Art Museum) u kojem su postavljeni artefakti, tj. izumi i inovacije nastale tokom opsade, umjetnička izložba, izložba kanistera, tamo su održavani mikro teatarski performansi. Kako ste vi kao autori posmatrali ovu namjenu prostora kuće, a kako građani, posjetioci, publika?

Prof. emeritus Ognjenka Finci: Kada smo završili gradnju kuće, glumci koji su bili okupljeni oko ovoga projekta i koji su također - od Amine Begović, Mirze Halilovića, Jesenka Selimovića, Žana Marolta i drugih - gotovo svakodnevno dolazili u Dom izviđača i sa Suadom koncipirali i radili na performansu koji govori o umijeću opstanka, što je bio integralni dio projekta "Bomba od želea", pokazan je kada smo zvanično otvorili vrata bosanske kuće – kuće teatra brojnim zvanicama, prijateljima, članovima porodica učesnika, stranim novinarima kojih je već u to prvo ratno ljeto bilo u gradu mnogo. Performans je bio odličan, glumci motivirani, publika oduševljena njima, ali i neočekivanim objektom i prostorom unutar njega. Svi smo, i učesnici i gosti, bili u posebnom raspoloženju, sretni i uzbuđeni, a istovremeno, gledajući rezultat, u nevjerici da smo uspjeli.

Bosanska kuća kakva je tada realizirana je kratko vrijeme bila u funkciji kakvu smo joj namijenili, demontirana je negdje krajem ljeta 1992 godine. Više nikada nije u toj formi ponovo postavljena. Ostalo je na neki način sjećanje na nju. Kada je na trgu ispred Narodnog pozorišta, današnji Trg Susan Sontag, te daleke 1995. postavljena izložba unutar koje su bili postavljeni neki artefakti koji su govorili o kreativnosti i umijeću Sarajlija da opstanu, Bosanska kuća je bila izložena samo u naznakama, postavljena kao konstrukcija manjeg razmjera, poslužila je više kao reminiscencija na kuću koju smo sagradili ljeta 1992. godine. Ja tada nisam bila u Sarajevu, tako da nisam učestvovala u toj izvedbi. Vidjela sam fotografije i teško da bi se ta instalacija mogla nazvati Bosanskom kućom koja je kako Vi kažete: zapravo funkcionisala kao izložba Muzeja umijeća opstanka. Ali bez obzira na tu improvizaciju - jer je i te 1995. godine (Sarajevo je još uvijek bilo u opsadi, rat je još trajao), bilo nemoguće izgraditi ovu kuću na otvorenom prostoru, uz to identičnu onoj koju smo izgradili ljeta 1992. godine u Domu izviđača - dragocjeno je što su njeno ime i sama ideja kuće na neki način bili klica iz koje se rodila ideja o Muzeju umijeća opstanka (Survival Art Museum).

Mnogo ih je koji su pomogli da se ideja multimedijalnog projekta „Bomba od želea“ realizira. Svako je nekoga animirao, tako da se broj učesnika značajno povećao. Svi su tada bili u nekom euforičnom raspoloženju, adrenalin u zraku se mogao gotovo opipati, revolt zbog ovoga čemu smo izloženi bio je motivirajući.

Projekat „Bomba od želea“ - "Bosanska kuća, 1992.", arhitektica: Ognjenka Finci
© FAMA Kolekcija - Arhiv fotografija 1992-1996.

Da li ste Vi i ostali učesnici ovog projekta tada bili svjesni činjenice da je riječ o prvom organizovanom obliku duhovnog i kulturnog otpora mehanizmu terora tokom opsade? Kako danas gledate na to?

Prof. emeritus Ognjenka Finci: Nismo razmišljali tada o tome na taj način, prosto smo se spontano mobilizirali, osjećali smo da nešto moramo raditi, da ne možemo sjediti skrštenih ruku. A kada smo već duboko uronili u projekt shvatili smo da tu našu energiju, taj entuzijazam, motiviranost, u krajnjoj liniji i hrabrost, upravo crpimo iz našeg prkosa, otpora nezamislivom teroru kome smo svakodnevno bili izloženi. Danas sa distancom većom od tri desetljeća, kada mislim o ovome, jer ste me vi svojim pitanjima vratili u to vrijeme, jednako mi izgleda nadrealno i ludo kao kada je Suada u ono rano junsko jutro 1992. došla kod mene sa idejom da projektujem Bosansku kuću - kuću teatar.

Kako je materijal stizao, tako je kuća rasla. Bilo je dana kada nije bilo moguće graditi, ili je nedostajao materija, ili oni koji su stanovali daleko nisu mogli doći zbog jakog granatiranja. A ja, kako sam stanovala praktično tri koraka od Doma izviđača, tu sam bila stalno, Suada je također sa Ciglana dolazila svakodnevno, jer je smatrala da po svaku cijenu mora uvijek biti tu, bez obzira na često nemoguće okolnosti i opasnost.

Koji je bio Vaš lični motiv da sudjelujete u ovom projektu? Kako ste tada gledali na gradnju unutar destrukcije, a kako na to gledate danas? Kako biste na osnovu ovog iskustva iz opsade Sarajeva opisali značaj stvaralačke moći arhitekture i graditeljstva kao izvrsnim pokazateljima ljudske kreativnosti, ingenioznosti i sposobnosti čovjeka da iz ničega stvara nešto?

Prof. emeritus Ognjenka Finci: Stvaranje u okolnosti nezamislive opsade je specifično, i svi smo mi, bez obzira kojom granom stvaralaštva, umjetnosti se bavili, iskusili da specifične okolnosti, posebno ove granične i teško zamislive, u stvaraocima potiču posebnu iskru kreativnosti i sposobnost da otkriju do tada nepoznate strane svoje ličnosti i granice svojih mogućnosti. Ja sam u ovom bremenitom vremenu spoznala i osvijestila mnoge stvari i o svijetu oko mene i o samoj sebi i o granicama slobode. Shvatila sam da i u ratnim okolnostima upravo kreativnost duha postavlja granice naše slobode koje nadilazile realni svijet u kome smo tada živjeli i znam da mi je upravo to saznanje pomagalo da sačuvam zdravu pamet.

Ja sam u ovom bremenitom vremenu spoznala i osvijestila mnoge stvari i o svijetu oko mene i o samoj sebi i o granicama slobode. Shvatila sam da i u ratnim okolnostima upravo kreativnost duha postavlja granice naše slobode koje nadilazile realni svijet u kome smo tada živjeli i znam da mi je upravo to saznanje pomagalo da sačuvam zdravu pamet.

Za kraj, opišite nam svoj dan tokom opsade Sarajeva?

Prof. emeritus Ognjenka Finci: Na ovo pitanje nije jednostavno odgovoriti. Bar kod mene nije postojala rutina, a teško da u ratnim okolnostima dani mogu ličiti jedan na drugi. Imala sam radnu obavezu na Arhitektonskom fakultetu. Nastava se održavala na dva punkta, na Medicinskom fakultetu i u prostorijama Košarkaškog kluba Bosna, u kući na uglu ulice Maršala Tita i tadašnje Maksima Gorkog kod Alipašine džamije, jer je u zgradi Fakulteta bila smještena specijalna jedinica odreda "Lasta".

Tako sam, prema rasporedu, par put sedmično išla na ova dva punkta da držim nastavu. Krenem na posao, tiho je, tek se čuje po koji snajperski pucanj, održim konsultacije, studenata malo, posebno su mladići bili malobrojni, gotovo su svi mobilizirani, a onda iznenada počinje granatiranje, trčiš negdje u zaklon i čekaš, čekaš da prestane kako bi se vratio kući.

Poslije ljeta 1992. i završenog projekta „Bomba od želea“ slijedili su novi angažmani. Suada Kapić je osmislila novi projekt „Vodič preživljavanja“. Radim na dizajnu njegove prve verzije, radimo u zgradi projektantske firme DOM. Tamo smo imali dobre uvjete za rad, većim dijelom dana struju, a za mene je sretna okolnost bila ta što je zgrada DOM-a tek nekih stotinjak metara od moje kuće. Neobično je kako sam tada imala neki osjećaj zaštićenosti i neke neobjašnjive sigurnosti kada sam u svom kvartu. Nisam imala niti jedan racionalni razlog za to, jer je moj kvart već prvih dana aprila 1992. godine bio granatiran. Zapaljen je Olimpijski muzej, koji je u mom neposrednom susjedstvu i od te noći pa do kraja rata nisam imala niti jedno staklo na prozorima, a i poslije te strašne aprilske noći, na moj kvart je pao popriličan broj granata. Tako je i rad na Suadinom vodiču obilježen jednim iznenadnim granatiranjem. Popodne je bilo mirno, sjedila sam uz kompjuter, pored mene moj kolega arhitekta Rijad Drino, odjednom smo se našli na podu, zgrada se strašno zatresla, kompjuteri se ugasili. Mislili smo da je potres, ali bila je granata koja je udarila u zgradu u kojoj smo se nalazili, srećom u praznu kancelariju dva kata iznad nas.

Za Otvoreno društvo BiH - Soros fondacija, radila sam kompletan grafički dizajn za programe koji je Fondacija realizirala. Većinu tih stvari smo štampali na Akademiji likovnih umjetnosti, pa je pretrčavanje preko mostova na drugu stranu rijeke jedno vrijeme bila moja „rutina“ i vještina kako ne postati snajperska meta.

Kada je osnovan Radio ZID tu sam, čini mi se svakoga četvrtka, u predvečerje, vodila polučasovnu emisiju klasične muzike „Musica humana“ pa sam sa pripremljenim tekstom, kasetama i pločama pod rukom žurno od moje kuće sa Mejtaša išla na Ciglane, gdje su bile prostorije radio Zida. ZID pokreće i izdavaštvo, tako da u nemogućim uvjetima radim dizajn prve knjige u izdanju ZID-a „100&1 NOĆ“ čiji je urednik Zdravko Grebo. Knjiga se štampa u štampariji Oslobođenja. Odlazak do zgrade Oslobođenja u Nedžarićima, da vidim prve otiske knjige i da potpišem da su dobri, je jedna od ratnih avantura koje se ne zaboravljaju. Vožnja autom izrešetanog mecima, jer je pokretna meta na njegovoj svakodnevnoj ruti dok prevozi novinare i odštampane novine, nezamislivom brzinom od centra grada do Nedžarića i nazad, uz upozorenja šofera da, na opasnim dionicama puta, ipak sagnem glavu!

Haris Pašović se preko piste vraća u opkoljeno Sarajevo negdje u zimu 1992. i nekako s proljeća 1993. počinjemo pripreme za predstavu "Alkestis" u Pozorištu mladih, radim scenografiju predstave. Po tom dolazi Susan Sontag u Sarajevo. Radim sa njom na predstavi "Čekajući Godota", scenografiju i kostim. U razrušenom Olimpijskom muzeju na inicijativu Harisa Pašovića, a u okviru MESS-a postavljamo u zimu 1993. izložbu Lebbeusa Woodsa inspirisanu destrukcijom Sarajeva "War and Architecture". Početkom 1994. sa studentima Arhitektonskog fakulteta radimo workshop, mentori su američki arhitekti Lebbeus Woods, Thom Mayne, Eckhardt Reinfeld.

Mogla bih nabrajati i nabrajati šta se sve radilo, šta se sve proživjelo i kako su tekli sarajevski ratni dani... Jedino što mogu svjedočiti je da niti jedan dan nije sličio prethodnom, dnevna rutina nije postojala, nju naprosto nije bilo moguće uspostaviti. Ono što je svim Sarajlijama bilo zajedničko je deveranje sa vodom, strujom, grijanjem. Ali tu nije bilo rutine, jer nikada nisi znao kada će doći voda ili struja, koliko dugo će biti od momenta kada dođe, pa onda juriš da obaviš sto stvari. A i strah nam je bio zajednički, jer ni sa granatiranjem nisi nikada znao kada će početi i gdje će te zateći, koliko će trajati, koliko štete, nesreće i tuge će donijeti.

Teško je opisati dan tokom opsade Sarajeva, jer svaki zaslužuje posebnu priču.

IN MEMORIAM
Prof. emeritus Ognjenka Finci
1949 - 2025.